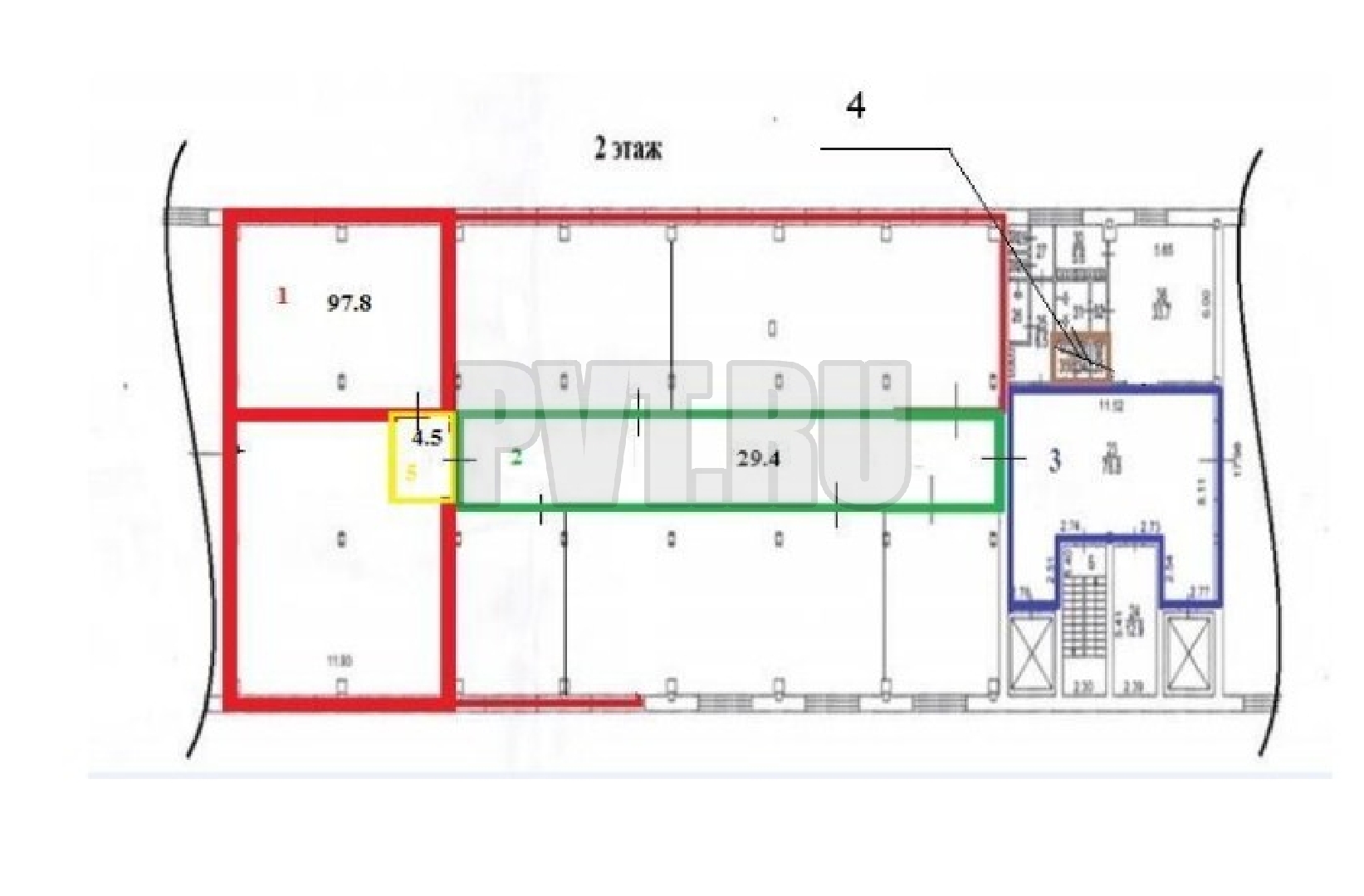
Склад, 97,8 м², смешанная планировка, готово к въезду

Характеристики помещения

Площадь

97,8 м²

Парковка

На прилегающей территории

146 700 ₽/мес.

18 000 ₽/м²/год

Связаться с нами

Коммерческие условия

Налогообложение

УСН

C

Класс

7 375,9 м²

Полезная площадь

3

Количество этажей

Вы можете записаться на просмотр интересующей вас площади